クレイドルガーデン寝屋川市 国松町 新築一戸建て6棟2号棟★の物件情報は仲介手数料無料・半額のアーバンサイエンス

営業時間 10:00~19:30 / 定休日 火曜日・水曜日
06-6155-4980
クレイドルガーデン寝屋川市 国松町 新築一戸建て6棟2号棟★

吹田市・豊中市 新築一戸建てクレイドルガーデン寝屋川市 国松町 新築一戸建て6棟2号棟★

大阪府寝屋川市国松町の新築一戸建て情報は仲介手数料無料・半額のアーバンサイエンス

★住宅性能評価書取得
★耐震等級3 地震に強い家
★駐車スペース2台
★フラット35S利用可能物件
★長期優良住宅
★香里園駅徒歩24分
3280万円→3180万円2026.2.12→3080万円2026.4.7
※★は、売出価格より約1割引くらい、★★は売出価格より約2割引くらい値下げがある物件で、お得感の指標です。★★は、在庫処分価格で限界価格です。
★以上の物件は中古価格と逆転しておりいつ売れてもおかしくない金額です。3月決算・大手分譲会社・在庫回転率を重視しているため強制的に価格改定あり

〔物件ID〕 0000095769
  • 仲介手数料無料or半額
  • 新築戸建
  • 新着
3,080 万円
所在地 大阪府寝屋川市国松町
交通 京阪本線「香里園」駅 徒歩24分
建築面積 101.64m2 (30.74坪)
土地面積 106.70m2 (32.27坪)
築年月 2026年01月(令和8年01月)
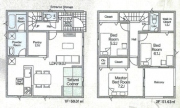
間取り 3LDK
  • おすすめ物件
  • REAL BANK 特選物件
クレイドルガーデン寝屋川市 国松町 新築一戸建て6棟2号棟★の物件写真
クレイドルガーデン寝屋川市 国松町 新築一戸建て6棟2号棟★のMAP・周辺環境
クレイドルガーデン寝屋川市 国松町 新築一戸建て6棟2号棟★の物件概要
所在地 大阪府寝屋川市国松町
交通 京阪本線「香里園」駅 徒歩24分
価格 3,080万円
小学校区---中学校区---
建物面積 101.64m2(30.74坪) 土地面積 106.70m2(32.27坪)
間取り 3LDK 構造 木造
築年月 2026年01月(令和8年01月) 総戸数 ---
駐車場 --- 駐車場料金 ---
土地権利 所有権 地目 宅地
私道負担/私道面積 --- セットバック/距離/面積 ---
都市計画 --- 用途地域 一中
建ぺい率 --- 容積率 ---
接道状況 一方
方向:北      種別:--      幅員:4.7m      間口:--
その他使用料 ---
現況 --- 引渡 相談
取引態様 売主 国土法届出 ---
設備 ---
コメント ◎ゆとりの広さで家事のしやすい間取りプラン!!
地震の揺れを吸収する「クワイエ」による建物で、地震に強く安心の一戸建てです♪
地震の揺れに耐える「耐震性能」と、揺れを抑えて住宅へのダメージを軽減する「制震性能」を兼ね備えた建売住宅ブランド「QUIE」
■耐震 + 制震の家、QUIE(クワイエ)。
■SAFE365で地震の揺れを吸収する家
★安心の地盤調査済み物件
★フラット35S利用可能物件
★住宅性能表示付き
★建物10年保証有
★6区画分譲地です。
★ペアガラス標準装備
★浴室暖房乾燥機付
更新日 2026年04月16日 次回更新予定日 2026年04月30日
ローンシミュレーション
自己資金 万円
※別途、諸費用が必要です。
ローン借入額 万円
内ボーナス時支払い 万円
※ボーナス返済月の加算額ではありません。
※お借入れ予定額の50%以下の金額をご入力ください。
金利
返済年数
  • 月々(毎月返済額)
  • 0
  • ボーナス(ボーナス時加算額)
  • 0

物件情報と現況に差異がある場合、現況を優先します。
掲載物件は売却済み、売却中止、価格変更となる場合がありますので、予めご了承ください。
仲介物件には所定の仲介手数料(消費税含む)が必要です。

アーバン・サイエンス株式会社
会社名 アーバン・サイエンス株式会社
所在地 〒564-0063
吹田市江坂町1丁目16番10号
メゾン江坂102(1階北側)
交通 北大阪急行電鉄「江坂」駅徒歩3分
Osaka Metro御堂筋線「江坂」駅徒歩3分
TEL 06-6155-4980
FAX 06-6155-4909
ホームページHP https://www.realinfobank.com/
メールアドレスE-MAIL info@realinfobank.com
免許番号 大阪府知事(2)第58984
営業時間 10:00〜19:30
定休日 火曜日、水曜日
物件を探す ×
物件種別
エリア
価格
建物面積
土地面積
専有面積
建築条件
現況
間取り
駅徒歩
築年数
こだわり条件
無料会員登録で非公開物件をご覧いただけます!

現在の会員数872

会員登録で
物件数が大幅アップ!

公開物件 895

公開物件+
非公開物件
6,759

  • 会員登録は無料!
  • 会員専用マイページを作成!
  • 希望条件に合う新着・価格変更物件をメール配信!
  • 非公開物件が閲覧可能!
  • 他社にはない特別限定物件のご紹介チャンスあり!