ブルーミングガーデン西宮市 上甲東園5丁目 新築一戸建ての物件情報は仲介手数料無料・半額のアーバンサイエンス

営業時間 10:00~19:30 / 定休日 火曜日・水曜日
06-6155-4980
ブルーミングガーデン西宮市 上甲東園5丁目 新築一戸建て

吹田市・豊中市 新築一戸建てブルーミングガーデン西宮市 上甲東園5丁目 新築一戸建て

兵庫県西宮市上甲東園5丁目の新築一戸建て情報は仲介手数料無料・半額のアーバンサイエンス

★住宅性能評価書取得
★耐震等級3 地震に強い家
★駐車スペース1台
★フラット35S利用可能物件
★長期優良住宅
★南向き
5790万円→5590万円2025.12.6→5490万円2025.12.18
※★は、売出価格より約1割引くらい、★★は売出価格より約2割引くらい値下げがある物件で、お得感の指標です。★★は、在庫処分価格で限界価格です。
★以上の物件は中古価格と逆転しておりいつ売れてもおかしくない金額です。3月決算・大手分譲会社・在庫回転率を重視しているため強制的に価格改定あり

〔物件ID〕 0000090664
  • 仲介手数料無料or半額
  • 新築戸建
  • 値下げ
5,490 万円
所在地 兵庫県西宮市上甲東園5丁目
交通 阪急今津線「甲東園」駅 徒歩13分
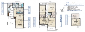
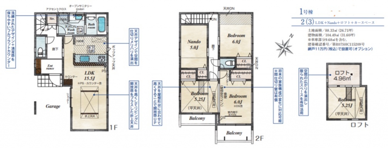
建築面積 104.49m2 (31.6坪)
土地面積 88.33m2 (26.71坪)
築年月 2025年12月(令和7年12月)
間取り 2LDK
  • 低層住居専用地域
  • 新耐震基準
ブルーミングガーデン西宮市 上甲東園5丁目 新築一戸建ての物件写真
ブルーミングガーデン西宮市 上甲東園5丁目 新築一戸建てのMAP・周辺環境
ブルーミングガーデン西宮市 上甲東園5丁目 新築一戸建ての物件概要
所在地 兵庫県西宮市上甲東園5丁目
交通 阪急今津線「甲東園」駅 徒歩13分
価格 5,490万円
小学校区---中学校区---
建物面積 104.49m2(31.6坪) 土地面積 88.33m2(26.71坪)
間取り 2LDK 構造 木造
築年月 2025年12月(令和7年12月) 総戸数 ---
駐車場 --- 駐車場料金 ---
土地権利 所有権 地目 宅地
私道負担/私道面積 --- セットバック/距離/面積 ---
都市計画 --- 用途地域 二低
建ぺい率 --- 容積率 ---
接道状況 ---
その他使用料 ---
現況 --- 引渡 相談
取引態様 仲介 国土法届出 ---
設備 ---
コメント ◎耐震等級は最高等級!耐震等級3の地震に強い家
◎住宅性能評価取得の高品質住宅!
◎建売では珍しい長期優良住宅!
◆【上場会社施行】ワンランク上の品質、長期優良住宅の最高基準をクリア!
◆数百年に一度の地震に耐える力の1.5倍『ブルーミングガーデン』
◆安心の新築住宅10年保証!長期優良住宅で長期間安心して暮らせます!
★1区画分譲地です。
★フラット35S利用可
★ペアガラス標準装備
★浴室暖房乾燥機付
★駐車スペース1台
★南側道路
※全ての現場で地盤調査を実施しております。
(スウェーデン式サウンディング調査)
※国際規格であるISO9001を取得。国際規格であるISO9001は、品質の確保を通じて顧客満足を向上させるために、品質マネジメントシステムを構築し、
維持し、継続的に改善をおこなうものです。
ISO9001に沿って、正しく品質確保の仕組みを構築し、事業を行っていることを、中立の審査機関が客観的に証明しております。
■□■長期優良住宅取得■□■
※中古住宅として売却するときでも、長期優良住宅の認定を受けていることで評価に差が出ることもあります。
『丈夫な造りをしています』というだけでは、信憑性がありませんが、「長期優良住宅」認定済住宅となれば、耐震性や耐久性、
維持管理の容易性等を客観的に証明することができ、メンテナンスの記録も残されているため、流通時にはプラスの材料となります。
※安心のベタ基礎 べた基礎は立ち上がりと底面全体が一体の鉄筋コンクリート造となり、建物荷重を底面全体で地盤に伝えるため、
基礎の一部だけが沈む「不同沈下」に対する有効な措置と言えます。
また、基礎と土台とをつなぐアンカーボルトは、大きな地震などにより建物が基礎から外れたり持ち上げられたりしないための役割があります。
べた基礎は、建物下の地面をコンクリートで覆うので、地面からの湿気を防ぐ効果もあります。
■□■面を強化する耐震構造■□■
柱は垂直の力には強いのですが、水平の力には無力です。
耐震構造とは、一般的に壁などの「面」を強化することで地震や台風などの横からの力に抵抗します。
■□■水平構面■□■
地震や風による水平の力に耐えうる床や屋根 (野地板)で構成される水平の要素のことをいいます。
床面全体で地震の力を受け止めて耐力壁に平均的に力を伝えることで耐震性を高めています。
さらに、梁や桁といった構造材が地震の力で変形することを防ぐため、火打ち金物で補強しています。
●住宅性能表示制度のメリット
①品確法に基づく住宅性能評価書を取得すると、地震に対する強さの程度に応じた地震保険料の割引を受けることができます。
②建設住宅性能評価書の交付を受けた住宅は、民間金融機関や公共団体の住宅ローンの優遇を受けられる場合があります。
住宅性能表示制度を利用した新築住宅で、一定の要件を満たすものについては、住宅金融支援機構提携フラット35に係る手続きの簡素化等を受けられます。
③国の指定を受けた評価機関で一級建築士等の資格を持つプロが、第三者の立場でチェックします。
設計段階はもちろんのこと、工事の過程でも現場調査を4回に渡って実施しますので、手抜きなどにまつわる不安を解消します。

【担当者のコメント】★は、売出価格より約1割くらい、★★は売出価格より約2割くらい値下げがある物件で、お得感の指標です。
こちらの物件は、在庫回転率を重視する大手建売の分譲で、相場より大幅に下げて無理矢理売り切ることがあります。
当社スタッフと一緒に、お客様の新生活に相応しいマイホームを探して、人生をより豊かなものにしましょう。
当社ではお客様の希望条件をしっかりとお伺いし、条件がマッチした物件をご紹介するだけでなく、お客様自身の気づいていないニーズを汲み取り、よりピッタリと合う物件のご提案をさせていただいております。
又、地域に密着し、地域に特化した当社だからこそ取り扱える豊富な不動産情報もございます。
お気軽にご相談下さい。
◇◆◇◆◇ご見学について◇◆◇◆◇
完成物件はもちろん、建築中の物件でもご自由にご覧いただけます。
完成後ではなかなか見ることが出来ないしっかりとした構造躯体をご覧いただくことも可能です。
【定休日…火曜(隔週)・水曜日、営業時間…10:00から19:30まで 土日でも内覧可能です!】
◆◆◆『ご案内の流れ』◆◆◆
【1】スーモ・ホームズ・アットホーム・YAHOO不動産等の不動産専門ポータルサイト等
   から気になる物件をピックアップ
       ↓
【2】新築の場合、他社掲載の物件も当社でほとんどが取り扱い可能です。物件の状況を確認させていただきます。
       ↓
【3】ご案内の日時調整、待ち合わせ場所調整(現地集合)
       ↓
【4】 現地案内
当社では、お客様に実際に物件をご覧頂くことをお勧めしております!
◆実際に物件をみることの利点◆
(1) 時間帯によって変化する環境(陽当たり・周辺交通量・音など)
を実際にお家で体験して頂くことで、慎重にお家をお選び頂けます!
(2) 実際にお家に入ることで、間取りだけでイメージしていたのとは、違いが
あることを発見しましたというお客様が多いです!
      ↓
【5】資金計画のご相談等
資金計画(諸費用)や住宅ローン(ローンが組めるかや毎月の支払いなど)、
当社は住宅ロ-ンに自信!『自己資金が無いけど、自営業なんだけど、所得が少ないけど、勤続年数が短いけど、契約社員なんだけど、母子家庭だけど、他に借入れがあるけど等』お気軽にご相談下さい。

1)新築専門サイト新築建売.comでは仲介手数料無料or半額の独自のサービスを実施しております。(新築建売限定)
★住宅ローン事務手数料(10万円)も無料です。
★当社は仲介手数料以外の金銭を一切いただきません。
2)ローンの資金相談、ファイナンシャルプランナーとの資金相談も無料でご相談できます。(希望の方)
3)物件探しのポイント、知らないと損をする金利のことや不動産事情など丁寧にご説明させていただきます。
4)経験豊富なスタッフにより物件選びにおけるご提案の幅の広さから後悔しない住まい選びの実現、低価格で高品質なサービスを目指しております。
5)広告宣伝費などのコストを徹底的にカットし、資質と経験を兼ね備えた大手出身のベテランスタッフが少数精鋭でサービスの質を追求し、お客様に利益を還元しています。
※新築物件のほとんどは当社で取り扱い可能です。
※諸費用はどこでも同じではございません。
※価格交渉もお客様のかわりに分譲会社に交渉させていただきます。

●フラット35S利用可能物件とは?
フラット35の技術基準に加え、耐震性、省エネルギー性などに優れた住宅を取得する場合に、一定期間フラット35の金利を引き下げてくれるのが「フラット35S」です。フラット35Sには「金利Aプラン」と「金利Bプラン」があります。例えば、耐震等級3の住宅であれば「金利Aプラン」の利用ができ、耐震等級2以上の住宅であれば「金利Bプラン」が利用できるというように、建物の技術基準をどこまで満たしているかによって利用できるプランが異なります。「金利Aプラン」の金利は当初10年間、フラット35の金利から0.25%引き下げ、「金利Bプラン」の金利は当初5年間0.25%の引き下げになります。

●建設住宅性能評価とは?性能評価書ダブル取得物件とは?
住宅性能評価には2段階あり、設計段階で第3者がチェックする「設計住宅性能評価」と、設計住宅性能評価に表示された性能が実際に建築された住宅で発揮されているのかを第3者がチェックする「建設住宅性能評価」があります。予め設計住宅性能評価を受けていないと建設住宅性能評価が申請出来ない仕組みになっています。建設住宅性能評価は一般的な木造の場合に4回程度チェックがあり、基礎の配筋工事が完了した時点・構造躯体の工事が完了した時点・内装下張り工事の直前・建物が竣工した時点の4回入ります。検査時期以外の工程も、施工記録等で確認して徹底した管理体制で評価チェックします。

【耐震等級1】(建築基準法の耐震性能を満たす水準)
・数百年に一度程度の地震(震度6強から7程度)に対しても倒壊や崩壊しない
・数十年に一度発生する地震(震度5程度)は住宅が損傷しない程度
※建築基準法ギリギリの設定の場合、倒壊はしないが、震度6~7程度の地震に対して損傷を受ける可能性があります。
【耐震等級2】
・等級1で想定される1.25倍の地震が起きても耐えられる
※主に学校や病院などの耐震性能が等級2です。
【耐震等級3】★★★(対象不動産)★★★
・等級1で想定される1.5倍の地震が起きても耐えられる
※主に消防署や警察署など防災の拠点となっている建物は等級3です。
・等級1で想定される1.5倍の地震が起きても耐えられる
※主に消防署や警察署など防災の拠点となっている建物は等級3です。
耐震等級3にも3段階のレベルがあり、許容応力度計算が一番信頼性が高く、次が性能表示計算、その次が壁量計算となります。
建築基準法の壁量計算による耐震等級3では許容応力度計算で計算すると耐震等級2以下の可能性もあるといわれています。
性能表示計算は、品確法に基づいた構造計算で、単に建物の強度を測るだけでなく、長期優良住宅の認定・住宅性能評価を受けるための基準になっています。
性能表示制度で求められる壁量設計は、許容応力度計算を行った場合と同程度の必要壁量が求められるため、構造計算(許容応力度計算)を行った場合と同じ程度の壁量になるといわれています。
知っておくべきは「建築基準法の壁量計算」と「性能表示の壁量計算」は異なった式を使っているということです。
多くの2階建の新築建売は建築基準法の足切り基準(建築基準法の壁量計算)で建築されていますが、
性能表示計算・許容応力度計算での耐震等級1の強度はなく耐震等級1未満となります。
更新日 2026年01月12日 次回更新予定日 2026年01月26日
価格変更履歴

価格変更履歴については、
担当者にお問い合わせください。

ローンシミュレーション
自己資金 万円
※別途、諸費用が必要です。
ローン借入額 万円
内ボーナス時支払い 万円
※ボーナス返済月の加算額ではありません。
※お借入れ予定額の50%以下の金額をご入力ください。
金利
返済年数
  • 月々(毎月返済額)
  • 0
  • ボーナス(ボーナス時加算額)
  • 0

物件情報と現況に差異がある場合、現況を優先します。
掲載物件は売却済み、売却中止、価格変更となる場合がありますので、予めご了承ください。
仲介物件には所定の仲介手数料(消費税含む)が必要です。

アーバン・サイエンス株式会社
会社名 アーバン・サイエンス株式会社
所在地 〒564-0063
吹田市江坂町1丁目16番10号
メゾン江坂102(1階北側)
交通 北大阪急行電鉄「江坂」駅徒歩3分
Osaka Metro御堂筋線「江坂」駅徒歩3分
TEL 06-6155-4980
FAX 06-6155-4909
ホームページHP https://www.realinfobank.com/
メールアドレスE-MAIL info@realinfobank.com
免許番号 大阪府知事(2)第58984
営業時間 10:00〜19:30
定休日 火曜日、水曜日
物件を探す ×
物件種別
エリア
価格
建物面積
土地面積
専有面積
建築条件
現況
間取り
駅徒歩
築年数
こだわり条件
無料会員登録で非公開物件をご覧いただけます!

現在の会員数855

会員登録で
物件数が大幅アップ!

公開物件 1,030

公開物件+
非公開物件
6,943

  • 会員登録は無料!
  • 会員専用マイページを作成!
  • 希望条件に合う新着・価格変更物件をメール配信!
  • 非公開物件が閲覧可能!
  • 他社にはない特別限定物件のご紹介チャンスあり!