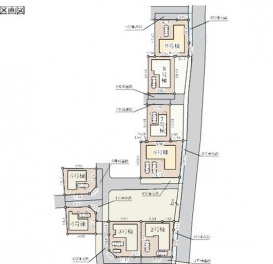
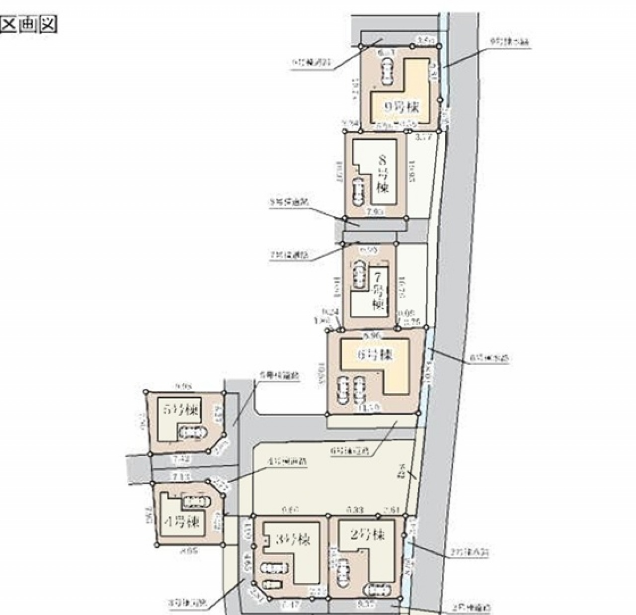
リーブルガーデン寝屋川市 仁和寺町 新築一戸建て9棟7号棟★★の物件情報は仲介手数料無料・半額のアーバンサイエンス

営業時間 10:00~19:30 / 定休日 火曜日・水曜日
06-6155-4980
リーブルガーデン寝屋川市 仁和寺町 新築一戸建て9棟7号棟★★

吹田市・豊中市 新築一戸建てリーブルガーデン寝屋川市 仁和寺町 新築一戸建て9棟7号棟★★

大阪府寝屋川市仁和寺町の新築一戸建て情報は仲介手数料無料・半額のアーバンサイエンス

★住宅性能評価書取得
★耐震等級3 地震に強い家
★駐車スペース1台
★フラット35S利用可能物件
2980万円→2780万円2025.7.8→2580万円2025.9.8
成約済み2025.9.30キャンセル→2480万円2025.10.7→2380万円2025.11.13
※★は、売出価格より約1割くらい、★★は売出価格より約2割くらい値下げがある物件で、お得感の指標です。★★は、在庫処分価格です。3月決算・大手分譲会社・在庫回転率を重視しているための価格改定あり

〔物件ID〕 0000088607
  • 仲介手数料無料or半額
  • 新築戸建
  • 値下げ
2,380 万円
所在地 大阪府寝屋川市仁和寺町
交通 京阪本線「寝屋川市」駅 バス8分/停歩4分
建築面積 114.48m2 (34.63坪)
土地面積 75.48m2 (22.83坪)
築年月 2025年05月(令和7年05月)
間取り 2SLDK
  • おすすめ物件
  • REAL BANK 特選物件
  • 新耐震基準
リーブルガーデン寝屋川市 仁和寺町 新築一戸建て9棟7号棟★★の物件写真
リーブルガーデン寝屋川市 仁和寺町 新築一戸建て9棟7号棟★★のMAP・周辺環境
リーブルガーデン寝屋川市 仁和寺町 新築一戸建て9棟7号棟★★の物件概要
所在地 大阪府寝屋川市仁和寺町
交通 京阪本線「寝屋川市」駅 バス8分/停歩4分
価格 2,380万円
小学校区---中学校区---
建物面積 114.48m2(34.63坪) 土地面積 75.48m2(22.83坪)
間取り 2SLDK 構造 木造
築年月 2025年05月(令和7年05月) 総戸数 ---
駐車場 --- 駐車場料金 ---
土地権利 所有権 地目 宅地
私道負担/私道面積 --- セットバック/距離/面積 ---
都市計画 市街 用途地域 一中
建ぺい率 --- 容積率 ---
接道状況 一方
その他使用料 ---
現況 --- 引渡 相談
取引態様 売主 国土法届出 ---
設備 ---
コメント 地震力や風圧力に対して、建物が倒壊しにくいように筋かいなどを設けた壁の必要量を1.5倍の耐震等級3を確保しています。
「I.D.S工法による強固な構造躯体&SI住宅対応!」の高品質な住宅!
■フローリングは、キズの付きにくい特殊塗装を採用し、内装ドアは、堂々とした木目が存在感の有る空間。
■水回りや内装など、機能性豊かな設備を取り揃えているだけでなく、シンプル且つ使い勝手の良い設備が満載!
■毎日使う玄関ドア、簡単操作で安心も備えたスマートコントロールキーを搭載!
■LOW-Eペアガラスは一般複層ガラスより「節電&エコ」「結露防止&保温効果アップ」!
☆カラーモニターインターホンで来客もひと目で確認安心です♪
☆システムキッチン(浄水器内蔵・収納たっぷり・スライド式で使いやすい)
★安心の地盤調査済み物件
★フラット35S利用可能物件
★住宅性能評価書取得
★耐震等級3
★建物10年保証有
★9区画分譲地です。
★浴室暖房乾燥機付
★駐車スペース1台
※全ての現場で地盤調査を実施しております。
(スウェーデン式サウンディング調査)
※固定金物「Tロック」は、ホールダウン金物の約2倍の強度があり、
接合部の強度を増加させ、地震や風圧がかかった場合の柱の抜けを防ぎます。
※サイディングとパネルの間に通気層があり、効果的な通気工法です。
※オリジナル耐力壁パネルは、壁倍率は5.0倍、3.7倍と認定されており、壁倍率5.0倍は国土交通省が定める数値内の最高値です。
通常の合板による壁倍率2.5倍の2倍の強度となっています。
※柱・梁材に構造用集成材(土台は防腐防蟻処理構造用乾燥集成材)を使用しており、
集成材は一般材に比べて30%強度が増します。また、木材の含水率を抑えて木材を腐らないようにしています。
※基礎は安心のベタ基礎施工で地面からの湿気を防ぎ、基礎と建物土台の間に基礎パッキン(20mm厚)を入れることにより、
床下の換気を行います。従来の通気口に比べて、床下の換気効率が約3~4割アップします。
【最大30年保証】
(条件付長期保証)の延長保証システム付の住宅!
引渡し後、半年・2年・5年に点検有

●住宅性能表示制度のメリット
①品確法に基づく住宅性能評価書を取得すると、地震に対する強さの程度に応じた地震保険料の割引を受けることができます。
②建設住宅性能評価書の交付を受けた住宅は、民間金融機関や公共団体の住宅ローンの優遇を受けられる場合があります。
住宅性能表示制度を利用した新築住宅で、一定の要件を満たすものについては、住宅金融支援機構提携フラット35に係る手続きの簡素化等を受けられます。
③国の指定を受けた評価機関で一級建築士等の資格を持つプロが、第三者の立場でチェックします。
設計段階はもちろんのこと、工事の過程でも現場調査を4回に渡って実施しますので、手抜きなどにまつわる不安を解消します。

【担当者のコメント】★は、売出価格より約1割くらい、★★は売出価格より約2割くらい値下げがある物件で、お得感の指標です。
こちらの物件は、在庫回転率を重視する大手建売の分譲で、相場より大幅に下げて無理矢理売り切ることがあります。
当社スタッフと一緒に、お客様の新生活に相応しいマイホームを探して、人生をより豊かなものにしましょう。
当社ではお客様の希望条件をしっかりとお伺いし、条件がマッチした物件をご紹介するだけでなく、お客様自身の気づいていないニーズを汲み取り、よりピッタリと合う物件のご提案をさせていただいております。
又、地域に密着し、地域に特化した当社だからこそ取り扱える豊富な不動産情報もございます。
お気軽にご相談下さい。
◇◆◇◆◇ご見学について◇◆◇◆◇
完成物件はもちろん、建築中の物件でもご自由にご覧いただけます。
完成後ではなかなか見ることが出来ないしっかりとした構造躯体をご覧いただくことも可能です。
【定休日…火曜(隔週)・水曜日、営業時間…10:00から19:30まで 土日でも内覧可能です!】
◆◆◆『ご案内の流れ』◆◆◆
【1】スーモ・ホームズ・アットホーム・YAHOO不動産等の不動産専門ポータルサイト等
   から気になる物件をピックアップ
       ↓
【2】新築の場合、他社掲載の物件も当社でほとんどが取り扱い可能です。物件の状況を確認させていただきます。
       ↓
【3】ご案内の日時調整、待ち合わせ場所調整(現地集合)
       ↓
【4】 現地案内
当社では、お客様に実際に物件をご覧頂くことをお勧めしております!
◆実際に物件をみることの利点◆
(1) 時間帯によって変化する環境(陽当たり・周辺交通量・音など)
を実際にお家で体験して頂くことで、慎重にお家をお選び頂けます!
(2) 実際にお家に入ることで、間取りだけでイメージしていたのとは、違いが
あることを発見しましたというお客様が多いです!
      ↓
【5】資金計画のご相談等
資金計画(諸費用)や住宅ローン(ローンが組めるかや毎月の支払いなど)、
当社は住宅ロ-ンに自信!『自己資金が無いけど、自営業なんだけど、所得が少ないけど、勤続年数が短いけど、契約社員なんだけど、母子家庭だけど、他に借入れがあるけど等』お気軽にご相談下さい。

1)新築専門サイト新築建売.comでは仲介手数料無料or半額の独自のサービスを実施しております。(新築建売限定)
★住宅ローン事務手数料(10万円)も無料です。
★当社は仲介手数料以外の金銭を一切いただきません。
2)ローンの資金相談、ファイナンシャルプランナーとの資金相談も無料でご相談できます。(希望の方)
3)物件探しのポイント、知らないと損をする金利のことや不動産事情など丁寧にご説明させていただきます。
4)経験豊富なスタッフにより物件選びにおけるご提案の幅の広さから後悔しない住まい選びの実現、低価格で高品質なサービスを目指しております。
5)広告宣伝費などのコストを徹底的にカットし、資質と経験を兼ね備えた大手出身のベテランスタッフが少数精鋭でサービスの質を追求し、お客様に利益を還元しています。
※新築物件のほとんどは当社で取り扱い可能です。
※諸費用はどこでも同じではございません。
※価格交渉もお客様のかわりに分譲会社に交渉させていただきます。

●フラット35S利用可能物件とは?
フラット35の技術基準に加え、耐震性、省エネルギー性などに優れた住宅を取得する場合に、一定期間フラット35の金利を引き下げてくれるのが「フラット35S」です。フラット35Sには「金利Aプラン」と「金利Bプラン」があります。
例えば、耐震等級3の住宅であれば「金利Aプラン」の利用ができ、耐震等級2以上の住宅であれば「金利Bプラン」が利用できるというように、建物の技術基準をどこまで満たしているかによって利用できるプランが異なります。
「金利Aプラン」の金利は当初10年間、フラット35の金利から0.25%引き下げ、「金利Bプラン」の金利は当初5年間0.25%の引き下げになります。

【耐震等級1】(建築基準法の耐震性能を満たす水準)
・数百年に一度程度の地震(震度6強から7程度)に対しても倒壊や崩壊しない
・数十年に一度発生する地震(震度5程度)は住宅が損傷しない程度
※建築基準法ギリギリの設定の場合、倒壊はしないが、震度6~7程度の地震に対して損傷を受ける可能性があります。
【耐震等級2】
・等級1で想定される1.25倍の地震が起きても耐えられる
※主に学校や病院などの耐震性能が等級2です。
【耐震等級3】★★★(対象不動産)★★★
・等級1で想定される1.5倍の地震が起きても耐えられる
※主に消防署や警察署など防災の拠点となっている建物は等級3です。
更新日 2025年11月13日 次回更新予定日 2025年11月27日
価格変更履歴

価格変更履歴については、
担当者にお問い合わせください。

ローンシミュレーション
自己資金 万円
※別途、諸費用が必要です。
ローン借入額 万円
内ボーナス時支払い 万円
※ボーナス返済月の加算額ではありません。
※お借入れ予定額の50%以下の金額をご入力ください。
金利
返済年数
  • 月々(毎月返済額)
  • 0
  • ボーナス(ボーナス時加算額)
  • 0

物件情報と現況に差異がある場合、現況を優先します。
掲載物件は売却済み、売却中止、価格変更となる場合がありますので、予めご了承ください。
仲介物件には所定の仲介手数料(消費税含む)が必要です。

アーバン・サイエンス株式会社
会社名 アーバン・サイエンス株式会社
所在地 〒564-0063
吹田市江坂町1丁目16番10号
メゾン江坂102(1階北側)
交通 北大阪急行電鉄「江坂」駅徒歩3分
Osaka Metro御堂筋線「江坂」駅徒歩3分
TEL 06-6155-4980
FAX 06-6155-4909
ホームページHP https://www.realinfobank.com/
メールアドレスE-MAIL info@realinfobank.com
免許番号 大阪府知事(2)第58984
営業時間 10:00〜19:30
定休日 火曜日、水曜日
物件を探す ×
物件種別
エリア
価格
建物面積
土地面積
専有面積
建築条件
現況
間取り
駅徒歩
築年数
こだわり条件
無料会員登録で非公開物件をご覧いただけます!

現在の会員数849

会員登録で
物件数が大幅アップ!

公開物件 1,031

公開物件+
非公開物件
6,818

  • 会員登録は無料!
  • 会員専用マイページを作成!
  • 希望条件に合う新着・価格変更物件をメール配信!
  • 非公開物件が閲覧可能!
  • 他社にはない特別限定物件のご紹介チャンスあり!